Cuisine du Clos Jean Cavalier : deux extensions en construction qui vont faciliter la vie de ceux qui la louent (associations et particuliers)
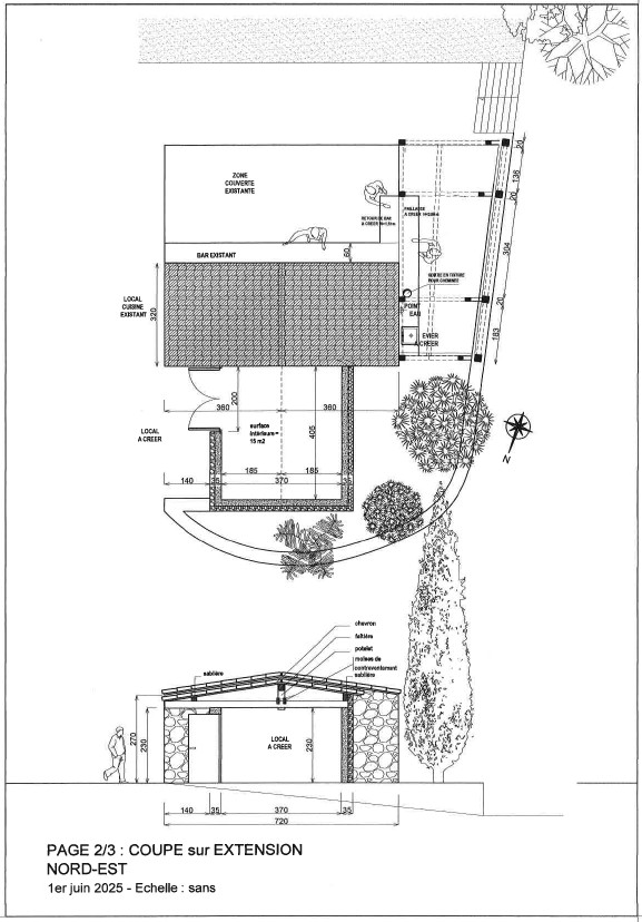
Cet automne vont donc être construites deux petites extensions autour et adossées à la cuisine du Clos Jean Cavalier : un petit local technique derrière la cuisine, qui servira à stocker tables, chaises, etc., au plus près de là où on en a besoin. Pour éviter autant que faire se peut les transvasements d’équipements lourds. Ainsi qu’un grand auvent à gauche du bar, qui pourra servir occasionnellement de cuisine extérieure, derrière un prolongement du bar en L.
Ces constructions ont été votées au dernier Conseil municipal. Les deux extensions permettront du coup de proposer l’usage aux associations de l’autre petit local, à gauche du Mazet, pour qu’elles y stockent leur matériel, requête que le Comité des Fêtes nous avait adressée. Leur construction va donc commencer début octobre, et devrait être terminée avant la fin de l’année. Ci-dessus les plans de ces deux extensions.


